• 639117603107742899_1.jpg
  • 639117603108055372_2.jpg
  • 639118615056431349_foto 1.png
  • 639118615058149996_foto 2.png
  • 639118615059712379_foto 3.png
Ukázat/Skrýt parametry
Typ:
Dobrovolná dražba
Stav:
Vyhlášena
Číslo:
II.05
Začátek dražby
08.06.2026 09:00
Předpokládaný konec:
08.06.2026 10:00
Vyvolávací cena:
3 063 520 Kč
Minimální příhoz:
20 000 Kč
Maximální příhoz
3 063 520 Kč
Výše jistoty:
20 000 Kč
Výše znaleckého posudku:
0 Kč
Kraj:
Královéhradecký
Město:
Jičín
Možnost podání předražku:
Ne
Podíl:
100%
Registrace do:
08.06.2026 08:00
Prokázání totožnosti do:
08.06.2026 08:00
Složení jistoty do:
08.06.2026 08:00
Číslo účtu složení jistoty
1208274195/2700
Výměra pozemku
467 m2
Odeslat provozovateli   Odeslat dražebníkovi

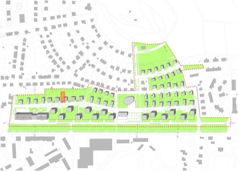
Kasárna Jičín, parc. č. 1296/56

Vloženo: 14.04.2026 19:51:14 |  Číslo dražby: II.05 3 063 520 Kč
Začátek dražby Pondělí 08.06.2026, 09:00

Podmínky účasti v dražbě

status
Registrován
a přihlášen
do systému
status
Přihláška
podána
status
Totožnost
ověřena
status
Jistina
složena
status
Přihláška
schválena

Popis předmětu dražby

  

Předmětem dražby je parcela katastru nemovitostí určená k výstavbě rodinného domu. Pozemek parc. č. 1296/56, zapsaný na listu vlastnictví č. 10001, pro katastrální území Jičín, obec Jičín, vedeném Katastrálním úřadem pro Královéhradecký kraj, Katastrální pracoviště Jičín. Pozemek je dle platného územního plánu zahrnut do plochy bydlení rodinného - BR.

Kompletní katalog rodinných domů je k dispozici na adrese https://www.mujicin.cz/ii%2Detapa%2Dprobiha%2Dpriprava%2Dprodeje/d-1317546. Pro další technické a stavební informace se prosím obraťte na město Jičín.

Místo konání

Dražebník

iderea Asset Management s.r.o.
Ing. Dalibor Trojek
Zvěřinova 3452/1
130 00 Praha 3
Česká republika
+420 605 203 516
dalibor@iderea.cz